Dettagli
- Riferimento269
- ContrattoVendita
- TipologiaVilletta
- LocalitàCamaiore - Lido Di Camaiore
Descrizione
Lido Di Camaiore NOSTRA ESCLUSIVA A Soli 300 Mt. Dal Mare In Zona Centrale E Residenziale, Villetta Bifamiliare In Perfetto Stato Di Manutenzione . Senza Spese Condominiali
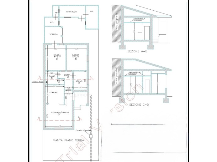
GIARDINO - INGRESSO - SOGGIORNO OPEN SPACE/ CUCINA A VISTA - 2 CAMERE MATRIMONIALI - 1 CAMERETTA/STUDIO - 1 BAGNO - VERANDA - DIPENDENZA SUL RETRO
villetta Con Giardino Su Tre Lati E Posto Auto, Ingresso Da Piccola Veranda Da Cui Si Accede All'abitazione, Spazioso Open Space In Cui Risulta Ben Divisa La Parte Del Soggiorno Con L'agolo Cottura L'ampia Finestra Dona Luce All'ambiente, Dal Disimpegno Si Giunge Alla Zona Notte Dove Troviamo Due Ampie Camere Matrimoniali , Una Cameretta/ Stanza Armadi/studio Ed Un Bagno Con Doccia.
Da Una Delle Camere Matrimoniali Si Accede Direttamente Da Porta Finestra Alla Veranda Dul Retro Che è Stata Adibita A Zona Lavanderia , Sempre Sul Retro è Presente Una Dipendenza Formata Da Due Vani , Ripostiglio E Wc ( Solo Questa Parte Della Casa Va Ristrutturata E Potrebbe Essere Utilizzata Anche Come Camera Aggiuntiva Col Proprio Bagno).
L'immobile è In Ottimo Stato , Gode Di Una Posizione Unica A Poco Distanza Dal Pontile Di Lido Di Camaiore E Dalla Passeggiata.
Immobile Validissimo E Unico Anche Per Potere Essere Utilizzato Sia Come Prima Casa Che Come Investimento Per Da Mettere Reddito Con La Formula Affitti Brevi.
Porta Blindata, Vetri Doppi In Pvc, Predisposizione Per Aria Condizionata.
Per Motivi Di Privacy, L'indirizzo Segnalato Sulla Mappa è Volutamente Diverso, L'immobile Si Trova Comunque Nelle Vicinanze. Il Presente Annuncio Non Costituisce Elemento Contrattuale, Vi Preghiamo Di Contattarci Per Sincerarvi Della Disponibilità Della Casa E La Sua Precisa Corrispondenza Alla Descrizione Dell'annuncio
